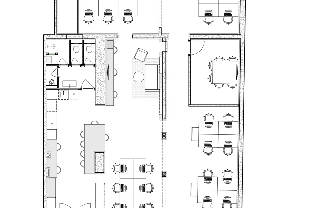
Rue d'Aboukir, Paris 2


Bureau opéré
Espace indépendant incluant de nombreux services, commercialisé via un contrat de prestation de service flexible et tout compris.
30 postes • 170 m²
9 900 €
HT /mois



































































































































