Bureau privé • sous-location
Réf 8N8NNU5
Dernière mise à jour le 22 octobre 2025
Réf 8N8NNU5
Dernière mise à jour le 22 octobre 2025
Châtelet les Halles
3 min à pied
Hôtel de Ville
3 min à pied
Châtelet
4 min à pied
Cité
6 min à pied
Châtelet-Les Halles
9 min à pied
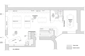
Cet espace de travail de 160 m², réparti sur trois niveaux, combine convivialité et confort dans une atmosphère propice à la concentration comme aux échanges. Il comprend de vastes open spaces lumineux, plusieurs salles de réunion et des espaces communs agréables.
Au rez-de-chaussée, une salle de 12 m² initialement dédiée aux réunions sera transformée en bureau fermé de 3 postes. Le mobilier de cet espace sera modifié afin de correspondre à cette nouvelle configuration de travail, offrant un environnement calme et fonctionnel pour une petite équipe, tout en restant à proximité immédiate de l’accueil et des zones partagées.
L’ensemble du lieu comprend également des zones de coworking ouvertes, une cuisine équipée, un coin détente avec canapés et bibliothèque, ainsi que plusieurs salles de réunion de tailles variées. L’ambiance générale est professionnelle, accueillante et pensée pour le bien-être quotidien des occupants.




Faîtes équipe avec Ubiq pour trouver vos bureaux !
Bureau privé • sous-location
Bureau privé • coworking
Bureau privé • coworking
Bureau privé • sous-location
Bureau privé • sous-location
Bureau privé • sous-location
Bureau privé • sous-location
Bureau privé • sous-location
Bureau privé • sous-location