Espace indépendant • bail classique
Réf BWEKDIV
Dernière mise à jour le 13 novembre 2025
Réf BWEKDIV
Dernière mise à jour le 13 novembre 2025
Haussmann Saint-Lazare
3 min à pied
Havre-Caumartin
3 min à pied
Saint-Lazare
5 min à pied
Trinité-d'Estienne d'Orves
6 min à pied
Chaussée d'Antin (La Fayette)
7 min à pied
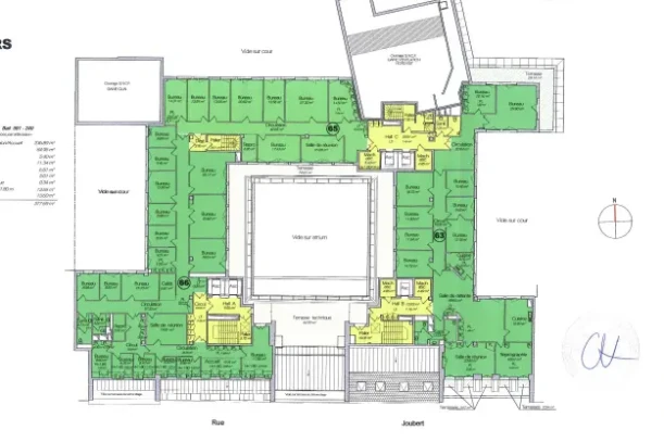
Plateau de bureaux au 5ème étage d'environ 1600M2 au sein de cet immeuble de standing à proximité immédiate de Saint-Lazare.
De nombreux aménagements possibles sur cette surface avec peu de contraintes porteuses

Faîtes équipe avec Ubiq pour trouver vos bureaux !
Espace indépendant • bail classique
Espace indépendant • bail classique
Espace indépendant • sous-location
Bureau privé • coworking
Plateau indépendant • coworking
Plateau indépendant • coworking
Plateau indépendant • coworking
Bureau privé • coworking
Bureau opéré