Rue Bichat, Paris 10
Bureau opéré
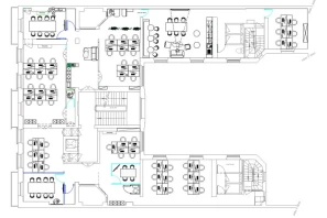
Espace indépendant incluant de nombreux services, commercialisé via un contrat de prestation de service flexible et tout compris.
70 postes • 490 m²
37 800 €
HT /mois
















































































































