Bureau privé • coworking
Réf 55NZPSN
Dernière mise à jour le 27 juin 2025
Réf 55NZPSN
Dernière mise à jour le 27 juin 2025
Alma-Marceau
2 min à pied
Pont de l'Alma
7 min à pied
Iéna
9 min à pied
George V
12 min à pied
Boissière
15 min à pied
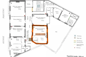
Dans un très bel immeuble haussmannien avec gardien, parties communes soignées, au 4ᵉ étage donnant sur cour intérieure calme, nous proposons à la sous-location (bail à l’année) un espace de 46 m² au sein de bureaux partagés avec deux autres sociétés :

Faîtes équipe avec Ubiq pour trouver vos bureaux !
Bureau privé • coworking
Bureau privé • sous-location
Bureau opéré
Bureau privé • sous-location
Bureau privé • sous-location
Bureau privé
Espace indépendant • sous-location
Bureau privé • coworking
Bureau privé • coworking