Open space partagé • coworking
Réf LB5KZU9
Dernière mise à jour le 15 avril 2026
Réf LB5KZU9
Dernière mise à jour le 15 avril 2026
Montreuil - Hôpital
8 min à pied
La Dhuys
8 min à pied
Coteaux Beauclair
19 min à pied
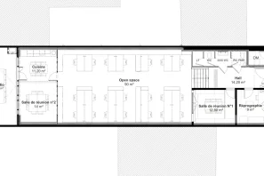
10 postes de travail disponibles à partir du 1er avril dans un atelier partagé actuellement en travaux, situé dans le Haut-Montreuil, à proximité immédiate des métros Montreuil–Hôpital et La Dhuys.
L’espace, agréable et lumineux, conserve l’esprit atelier du lieu d’origine, avec ses anciens sheds préservés qui offrent une lumière naturelle généreuse et une identité forte au volume.
Il est conçu et en partie occupé par une équipe d’architectes, attentive à la qualité architecturale, au confort d’usage et à l’impact environnemental du projet.
Les bureaux sont réalisés avec des matériaux biosourcés, favorisant un confort thermique été comme hiver, ainsi qu’une atmosphère saine et durable.
Le local est actuellement en travaux jusqu'à la fin du mois de mars.
Profils
Atelier partagé principalement par des architectes, ouvert à toute activité professionnelle compatible avec un espace de travail partagé : métiers de la création, de la conception, de la culture, de l’ingénierie ou autres pratiques indépendantes, dans un esprit respectueux et convivial.
Et surtout, au-delà d’un espace de travail, vous y trouverez de la convivialité (si vous aimez les Noëls canadiens et les pauses déjeuners animées, vous devriez vous y plaire !).
N’hésitez pas à nous contacter pour venir nous rencontrer et en savoir plus sur le projet, ou encore pour venir visiter les locaux en cours de travaux.
A très vite !

Faîtes équipe avec Ubiq pour trouver vos bureaux !
Open space partagé • coworking
Open space partagé • coworking
Open space partagé • sous-location
Open space partagé • coworking
Open space partagé • coworking
Open space partagé • sous-location
Open space partagé • coworking
Open space partagé • coworking
Open space partagé • coworking