Espace indépendant • bail classique
Réf YV8GLH5
Dernière mise à jour le 11 septembre 2025
Réf YV8GLH5
Dernière mise à jour le 11 septembre 2025
Liège
3 min à pied
Europe
5 min à pied
Place de Clichy
7 min à pied
Rome
8 min à pied
Saint-Lazare
9 min à pied
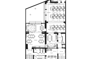
Nous vous invitons à découvrir un immeuble indépendant historique, en cours de rénovation à proximité de St-Lazare, un emplacement central idéal à proximité de tout, nous vous proposerons un espace d'exception alliant charme de l'ancien et design contemporain.
La livraison de cet espace est prévu pour Février 2026 avec 114 postes, salles de réunions , espace cuisine et réfectoire , espace détente.
Venez visiter dès maintenant pour réaliser un agencement de l'espace sur mesure en fonction de vos besoins accompagné par notre équipe Architecture & Design.

Faîtes équipe avec Ubiq pour trouver vos bureaux !
Espace indépendant • bail classique
Espace indépendant • bail classique
Plateau indépendant • coworking
Plateau indépendant • coworking
Plateau indépendant • coworking
Bureau opéré
Bureau privé • coworking
Plateau indépendant • coworking
Bureau privé • coworking