Bureau opéré
Réf WO6X6CZ
Dernière mise à jour le 14 octobre 2025
Réf WO6X6CZ
Dernière mise à jour le 14 octobre 2025
Opéra
3 min à pied
Auber
7 min à pied
Pyramides
7 min à pied
Madeleine
8 min à pied
Quatre Septembre
8 min à pied
📍 Adresse prestigieuse – Étage élevé – Vue dégagée
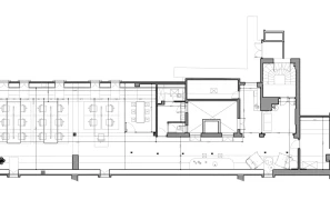
Découvrez un espace de bureaux rare et d’exception, idéalement situé rue Volney, à deux pas de l’Opéra Garnier et de la place Vendôme. Nichés en étage élevé d’un immeuble de standing, ces 150 m² entièrement rénovés offrent un cadre de travail unique alliant prestige, confort et fonctionnalité.
Caractéristiques principales :
Les plus :
📞 Contactez-nous dès maintenant pour organiser une visite de ce bien d’exception.

Faîtes équipe avec Ubiq pour trouver vos bureaux !
Bureau opéré
Espace indépendant • sous-location
Bureau opéré
Bureau privé • coworking
Bureau privé • coworking
Bureau privé • coworking
Bureau privé • coworking
Bureau privé • coworking
Bureau privé • coworking