Bureau opéré
Réf DYZV9SZ
Dernière mise à jour le 04 décembre 2025
Réf DYZV9SZ
Dernière mise à jour le 04 décembre 2025
Le Peletier
4 min à pied
Chaussée d'Antin (La Fayette)
5 min à pied
Trinité-d'Estienne d'Orves
6 min à pied
Notre-Dame de Lorette
6 min à pied
Richelieu-Drouot
7 min à pied
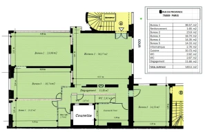
Bureaux standing paris Opera Lafayette
18 postes de travail + salle de réunion
clim , réseau wifi , parquet , style haussmannien, cuisine , 2 wc , imprimante scanner
Photocopieur professionnel , scantomail , cour intérieure paysagère , ascenseur , emplacement vélos
possibilité de diviser les prestations par lots de 8 postes

Faîtes équipe avec Ubiq pour trouver vos bureaux !
Bureau opéré
Bureau opéré
Bureau privé • coworking
Bureau privé • coworking
Bureau privé • coworking
Bureau privé • coworking
Bureau privé • coworking
Bureau privé • coworking
Bureau privé • coworking