Bureau privé • coworking
Réf JKGP9IO
Dernière mise à jour le 01 décembre 2025
Réf JKGP9IO
Dernière mise à jour le 01 décembre 2025
Le Peletier
4 min à pied
Chaussée d'Antin (La Fayette)
5 min à pied
Richelieu-Drouot
6 min à pied
Notre-Dame de Lorette
6 min à pied
Cadet
8 min à pied
Dans un magnifique building en plein coeur du 9ème arrondissement de Paris. Nous vous proposons, au 1er étage, un plateau indépendant de plus de 350m2
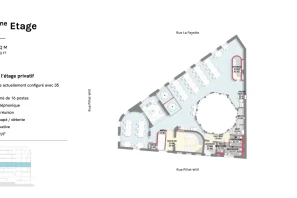
Aperçu de l’étage privatif
> Open space actuellement configuré avec 35
postes
> Bureau fermé de 16 postes
> 1 cabine téléphonique
> 2 salles de réunion
> Espace canapé / détente
> Cuisine privative
> Sanitaires H/F
En plus de ce plateau vous profitez de 800m2 d'espace communs au RDC.
Venez découvrir cet espace !


Faîtes équipe avec Ubiq pour trouver vos bureaux !
Bureau privé • coworking
Bureau privé • coworking
Bureau privé • coworking
Bureau privé • coworking
Bureau privé • coworking
Bureau privé • coworking
Bureau privé • coworking
Bureau privé • coworking
Bureau privé • coworking