Plateau indépendant • coworking
Réf A9YN5T6
Dernière mise à jour le 28 octobre 2025
Réf A9YN5T6
Dernière mise à jour le 28 octobre 2025
Châtelet les Halles
3 min à pied
Hôtel de Ville
3 min à pied
Châtelet
4 min à pied
Cité
6 min à pied
Châtelet-Les Halles
9 min à pied
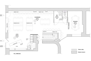
ESPACE SEMI - PRIVÉ (80 m2 privatif + accès à des espaces communs)
Dans une jolie rue calme et piétonne au centre de Paris, nous vous proposons un espace privatif, meublé et décoré avec goût, au sein d'un coworking café.
L'espace est composé d'une grande pièce avec des bureaux paysagés, d'une belle salle de réunion, de deux petits espaces fermés par des portes coulissantes et d'une cuisine conviviale pour vos pauses.
Le tarif inclut wifi, ménage quotidien, électricité, chauffage, assurance et l'accès à un buffet composé de café, choix de thés et jus de fruits bio, biscuits variés, fruits frais et autres gourmandises.
Service d'impressions et de coursier à disposition en supplément.
Aucun engagement requis. Possibilité de revoir le matériel ensemble (chaises ergonomique, etc...)
Vous êtes les bienvenus pour visiter quand vous le souhaitez.




Faîtes équipe avec Ubiq pour trouver vos bureaux !
Plateau indépendant • coworking
Plateau indépendant • coworking
Plateau indépendant • coworking
Bureau opéré
Bureau privé • sous-location
Bureau privé • coworking
Bureau privé • coworking
Bureau privé • coworking
Bureau privé • coworking